ЭРКЕР
Комплектация:
тепловой контур
ПОЛУЧИТЬ КОНСУЛЬТАЦИЮ
154 м2
Площадь дома
12 х 7.4 м
Размер
2 спальни
2 этажа
от 3 740 000 ₽
Стоимость
О ПРОЕКТЕ
ДОМЛЭНД ЭРКЕР-2-154 удобный, компактный дом в классическом стиле, каркасный дом из SIP панелей, который можно построить в течение 30 дней. Дом имеет два этажа, на первом этаже расположены гостиная, кухня, санузел и холл. На втором этаже комнаты отдыха. Для строительства дома используется SIP панель толщиной 174 мм. При строительстве применяется автоматизированная технология, что позволяет вести строительство в любое время года. Проект дома предусматривает, что строительство может проводиться в 2 этапа.
ПЛАНИРОВКА
1 ЭТАЖ:
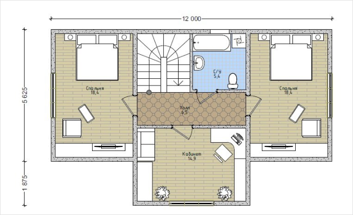
2 ЭТАЖ:
ПОЛУЧИТЕ РАСЧЕТ СМЕТЫ ОНЛАЙН
В НАШЕМ КАЛЬКУЛЯТОРЕ
Получить расчет сметы
Честный калькулятор стоимости дома
с формированием сметы в конце
МОЖЕТ БЫТЬ ИНТЕРЕСНО
БАРН 2
Площадь: 230 м2
Размер: 14.5 х 9.5 м
от 4 900 000 ₽
Комнат: 4
Санузлов: 2
СМОТРЕТЬ ВСЕ ПРОЕКТЫ
БАРН 2
Площадь: 230 м2
Размер: 14.5 х 9.5 м
от 4 900 000 ₽
Комнат: 4
Санузлов: 2
Санузлов: 2
Комнат: 4
от 4 900 000 ₽
Размер: 14.5 х 9.5 м
Площадь: 230 м2
БАРН 2
КОНТАКТЫ
Производство:
Производство:
Московская область, город Орехово-Зуево, улица Дзержинского, дом 34, территория завода Карболит
Офис:
МОСКВА
Москва, Ломоносовский проспект, дом 14
Офис
ОРЕХОВО-ЗУЕВО,
Орехово-Зуево, ул. Ленина, дом 90, Английский пассаж
Номер телефона:
+7 (967) 065 00 50
Email:
my@dearland.ru